Közvita a központi piacrólVan még rendezni való kérdés

2021. február 11., csütörtök, Közélet

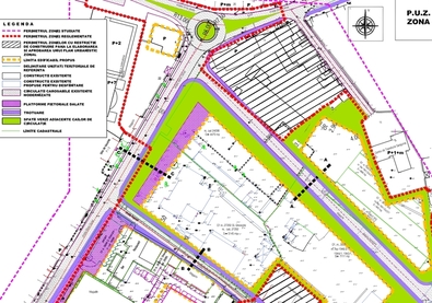
Fél órát sem tartott az a közmeghallgatás, amelyet a központi piac környékének szabályozási tervével kapcsolatosan hirdetett meg a sepsiszentgyörgyi önkormányzat – talán azért, mert ez már a második ilyen találkozó: az átalakítással közvetlenül érintett szomszédok már elmondták véleményüket, és a városháza is módosított az első terven, igaz, főként formai okokból. Ezúttal csak néhány konkrét kérdést tettek fel a még megoldatlan ügyekről.

A piac környékének átalakítása már régi terve a városvezetésnek, de csak tavaly tisztult le a mikéntje: a városi közszállítási vállalatot és a közüzemeket is kiköltöztetik Szépmezőre, a teniszpályákat az Arénához és a Stadion mögé, a meglévő – régi és leromlott – épületeteket lebontják, és az így megüresedő területen egy új, födött vásárcsarnokot építenek a piaci árusok számára, illetve egy emeletes parkolóházat, mert a belvárosban egyre nagyobb gond az autók leparkolása. A Nicolae Iorga utat a Császár Bálint utca sarkától meghosszabbítják a Bánki Donát utcáig, a Bánki Donát és a Kriza János utca kereszteződésében kisebb körforgalmat alakítanak ki, és lesz olyan terület is, amit visszaszolgáltatnak, illetve ahol zöldövezetet alakítanak ki. Birtalan Csilla városi főépítész hangsúlyozta, hogy ez csak egy szabályozási terv, a pontos méretek és részletek a kivitelezési tervben fognak megjelenni.

A közvitán jelen levő lakók közül ketten az udvarukra való behajtás miatt aggódtak, egy nyugdíjas polgár az autóvillamossági műhelyének sorsáért, egy negyedik szomszéd pedig a visszaigényelt telkéért. A behajtást a kivitelezési tervek készítésekor biztosan figyelembe veszik – felelte Birtalan Csilla, a többi kérdésre azonban Tóth-Birtan Csaba alpolgármester válaszolt. A (vállalkozásként már nem működő) műhely helyzetét az önkormányzat próbálta rendezni, de az a gond vele, hogy a terület bérlője nem azonos a rajta levő épület tulajdonosával; ha az épületet eladná vagy elszállíttatná a tulajdonos, akkor lehetne tovább lépni. A visszaszolgáltatásra váró terület még a Multi-trans szállítóvállalat székhelyéhez tartozik, és csak akkor lehet majd visszaadni, amikor a cég kiköltözik Szépmezőre. Az új telephely építése tavaly decemberben megkezdődött, és idén a tervek szerint be is fejeződik.

Hozzászólások
Támogassa a Háromszéket!

Önnek is fontos, hogy megbízható, hiteles forrásból tájékozódjék? Szeret elemzéseket, véleményanyagokat olvasni? Jobban meg akarja ismerni Székelyföld múltját, természeti, kulturális értékeit? Szívesen olvas a háromszéki művelődési életről, új könyvekről, színházi előadásokról? Szereti az alkotó emberekkel, vállalkozókkal, pedagógusokkal, sportolókkal készült interjúkat? A Háromszék napilapnál azért dolgozunk, hogy tartalmas olvasmányokat kínáljunk Önnek.
Ha Önnek is fontos a Háromszék, kérjük, adományával támogassa lapunk internetes kiadását.

Szavazás
Ön szerint ki volt a legrosszabb miniszterelnöke Romániának az elmúlt években?
















eredmények
szavazatok száma 1448
szavazógép
2021-02-11: Közélet - Józsa Zsuzsanna:

Ezerszer is igen! (Házasság hete Kézdiszéken)

Kézdi-Orbaiszéken az előző évekhez hasonlóan a Házas Hétvége mozgalom kézdiszéki házaspárjai és Hajlák Attila István imecsfalvi plébános kezdeményezésére szerveznek rendezvényeket a Házasság hetén. Hétfőtől szerdáig szentmisével és lelkigyakorlattal ünnepeltek Imecsfalván, pénteken romantikus vacsorával kedveskednek a pároknak Kézdivásárhelyen, szombaton imatúrát rendeznek a Perkőre, vasárnap pedig a házassági fogadalmak megújításával zárul a rendezvénysorozat.
2021-02-11: Közélet - Bokor Gábor:

Új oltóközpont Kovásznán

Új COVID-oltóközpontot létesítettek Kovásznán, de még nem oltanak benne. A szívkórházban működő oltási központ már jó ideje nem szerepel az országos oltáselőjegyzési internetes platformon.